Arka

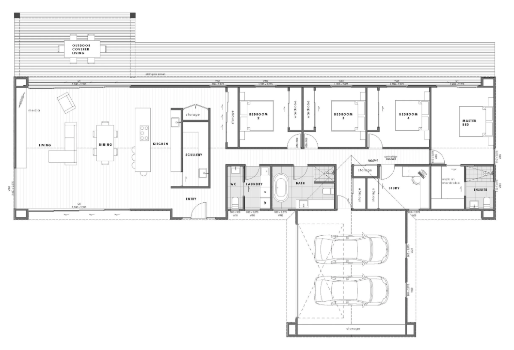
Introducing the Arka—our largest and most spacious barn-style home, thoughtfully crafted for modern family living. With four generous bedrooms, a separate study, and expansive open-plan living, this home brings everyone together while offering space to unwind. Inspired by Scandinavian simplicity and timeless form, the Arka features soaring 2.7m ceilings, full-height glazing, and a striking gable silhouette that connects effortlessly to the outdoors.

Arka—derived from both Sanskrit and Scandinavian roots—means light and shelter, a name that beautifully reflects the essence of this home. From the sun-filled kitchen with a central scullery to the luxurious master suite and practical double garage with internal access, every detail is designed for comfort, connection, and quiet elegance.

  • 258m2 modern floor plan. (excludes covered outdoor area)

  • Architecturally designed by Origin architecture.

  • 4 Bedrooms + Study.

  • Generous 1 Master bed with ensuite.

  • Open plan living, dining and kitchen.

  • Large eaves to prevent solar gain and overheating.

  • Covered roof outdoor room.

  • Can be customised to suit personal requirements.

  • Thermally modified timber (TMT) cladding options.

  • Modern wide tray metal roofing.

  • Thermally broken aluminium joinery.

Estimated build price from: $910,000 ex GST*

*Note this is an estimated base build price only, excludes any specific site works, foundations, interior fit out selections, and landscaping/ decking and swimming pools. Architectural, consultant and council fees are additional.

Please note: plans and materials are subject to change during the detailed design process.

For low energy design add additional estimated 10-15% from conventional build

All images, designs and layouts are copy right to Origin architecture Ltd ©

Our Design + Build Process

  • Stage 1: Feasibility

    In this stage we get the ball rolling on your project.

    Initial meeting to discuss your brief and budget.

    Investigation into your site.

    Identify site constraints and council limitations.

    We place the building platform on the site to ensure it fits.

    We get a better understanding of consents and consultants required.

  • Stage 2- Developed Design

    This is the fun part where we start to adjust the design to suit your needs.

    Plan adjustments made

    Introduction to our in house interior designer for interior review.

    Claddings confirmed

    Overall design agreed.

    Consents and consultants confirmed.

    Pricing updated with your Origin Home Builder to ensure budget is being met.

  • Stage 3- Detailed Design

    Upon sign off of your developed design we move onto preparing the detailed design ready for council consent approval.

    Consent documentation

    Upon consent approval your build can commence.

    Your Origin Home Builder will provide you with an updated quote for the project and fixed price contract.

  • Interior Design

    An Origin interior designer will work with you throughout the project to offer a bespoke service based on your needs, this includes:

    Hard and soft furnish scheduling.

    Kitchen, scullery, bathroom, laundry design.

    Wardrobe and storage design.

    Finishes selection.

  • We have partnered with our trusted builders to offer a fully integrated design and build solution nationwide. This approach brings several benefits:

    • Cost control from the outset, with fixed-price architectural and construction packages

    • Early builder involvement, ensuring feasibility and helping reduce unexpected costs

    • Streamlined communication between design and build teams

    • Faster delivery, thanks to an integrated process

  • We provide a full interior design service through Origin Interiors. This allows us to finalise finishes, fittings, and cabinetry during the design phase—ensuring a cohesive outcome and enabling more accurate pricing, which helps avoid scope creep or unnecessary allowances. We also offer competitive pricing for cabinetry and appliances, which can deliver meaningful cost savings.

  • All of our designs have a standard specification which can be upgraded depending on your overall outcome. Contact us today to find out more,

  • We can build nationwide, contact us today for a complimentary review of your site.